Basic information of the Prefabricated Residential Building
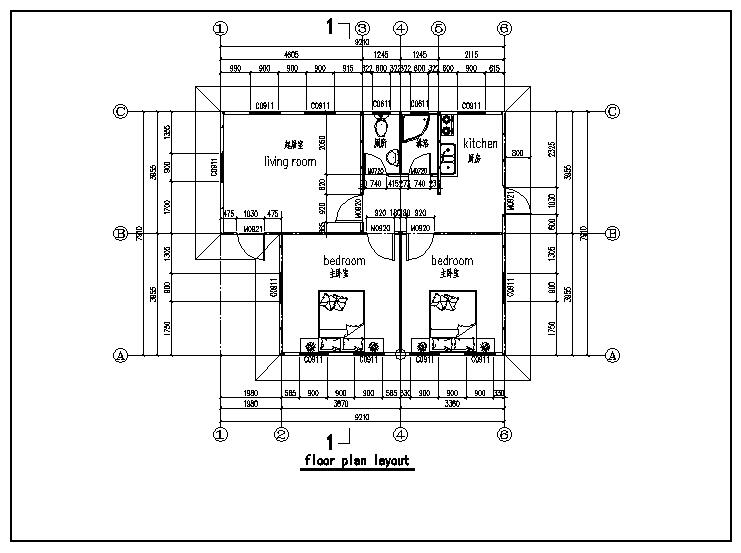
Dimension: 9.2*7.9*2.8m
Building site: Nigeria
Layout: two bedroom, one living room, one kitchen, one bathroom and shower
As an emerging architectural model, prefabricated housing has gradually become the mainstream trend in today's residential architecture through continuous upgrading and improvement. Below, we will provide a detailed introduction to the advantages, disadvantages, and development prospects of prefabricated housing.
Prefabricated housing refers to a construction method in which various components of a building are produced in a factory and then assembled and installed on the construction site. It can greatly improve construction efficiency, reduce the generation of construction waste, and save costs. Compared to traditional building models, its advantages mainly include the following aspects:
1, Fast construction speed: Industrial production methods can help reduce the duration of construction sites, while also reducing on-site noise and disturbance while reducing construction waste.
2, High quality and efficiency: building materials produced in the factory can be standardized and standardized, and quality control is better. Moreover, as all components are assembled in the factory, they can be quickly completed once on-site construction is carried out.
3, Permanent and reliable: The use of steel structures or other high-strength materials in the construction of prefabricated residential buildings can ensure the permanence and reliability of the residence, while also meeting the seismic and wind resistance requirements of urban buildings.
4, Environmental protection and energy conservation: Prefabricated residential buildings use a large amount of new materials produced through industrialization, which can reduce energy and material consumption, and have minimal construction waste, thereby reducing the degree of environmental pollution.
Although prefabricated housing has become a mainstream mode of modern architecture, there are still some shortcomings that need improvement. For example, prefabricated residential buildings require a large amount of lifting equipment, which definitely requires higher cost investment compared to traditional buildings. Moreover, different assembly structures may also have different applicable environments and building requirements, and construction personnel need to follow certain regulations and requirements during the construction process.
However, with the continuous progress of technology and the improvement of production processes, future prefabricated housing will usher in new development opportunities. More intelligent and personalized customized manufacturing technology, more refined and efficient on-site construction technology, and more efficient and green energy utilization technology are all expected to drive the vigorous development of the prefabricated residential industry.
In short, with the development of society and technological progress, prefabricated housing will increasingly emerge in our lives. Integrating modern architecture, strict management, and high-quality engineering, prefabricated housing has become a new trend in the field of residential architecture, which will change the way of life in the future.

Column&beam: square tube □60*40*1.5
Purlin: square tube □40*40*2
Roof: V-960, 75mm EPS sandwich panel
Wall: 90mm cement panel (external wall and internal wall)
Ceiling: PVC ceiling
The floor plan of this prefabricated residential building was provided by our client Mr. Richi, this is what he likes, and he choose the cladding material for this prefabricated building. if you also like a prefabricated residential building around your side, please feel free contact us now.
Mr.Andy
Email:kxdandy@chinasteelstructure.cn
Tel:+86 532 85397878
Fax:+86 532 85397878
Mobile/Whatsapp/Wechat:+86 13853233236
Skype:andyyu0074
Hot Tags: prefabricated residential building, China, manufacturers, suppliers, factory, cheap, custom, cost, quotation, prefabricated, mobile homes design, Steel structure pig shed, steel structure office building, Steel Structure Machine Workshop, broiler house construction, Steel Structure Works design

